veneramustafa studio/showroom

Location: Prishtina, Kosovo
Project date: 2014
Completion date: 2014
Area: 120 sqm
Type: retail/butique
Client: Venera Mustafa
Photographs: Atdhe Mulla
Project team: Postarch – Fatlum Haliti, Menor Pajaziti, Rinë Dinarama

The Outcome

Venera Mustafa is a local fashion designer whose studio is located in the city of Prishtina, Kosovo.
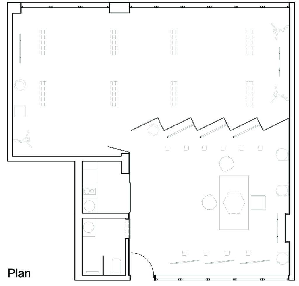
Previously, the brand was in two locations, one included the showroom/boutique, whereas the other one, the workspace. The new location includes both.

Our challenge was to reach the brand’s raw and urban character along with the warm and contrast detailing. 120 sqm were divided proportionally, the workspace taking 60% of the area while the boutique 40%.

The workshop façade faces the sun, which provides a lot of natural daylight, making the workspace a relaxed working environment. The boutique, on the other hand, offers a perfect exposure to the public space.

These two areas were separated with an OSB panel in a zig-zag way, in order to prevent noise coming from the working area. This panel also acts as a good background where metallic hangers protrude from the ceiling, leaving full attention to clothes. During our working process, our aim was to use low cost materials. The concrete ceiling, epoxy floor, OSB panels and glass facade create a warm and balanced composition.