
Prishtina downtown apartment I
The project is the renovation of an apartment contained within a modernist block building originally designed in 1954.
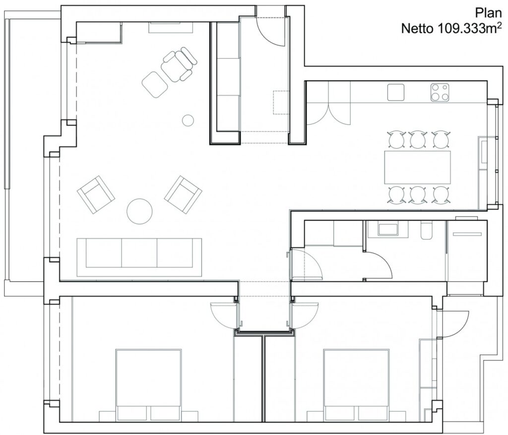
Project description
The building is a 4 floor residential block in the center of Pristina, surrounded by residential and mixed use buildings. The existing layout consisted of multiple rooms which creating an enclosed feeling within the apartment, the client required a more open plan layout however with the different uses within the space clearly defined.
The existing partitions were removed to create a clearly defined space, keeping only the main structural walls to break the space up creating a constant circulation around the apartment and giving the feeling of a single space.













