
GazetaExpress Offices HQ
Gazeta Express is a news portal owned by MediaWorks in the Republic of Kosovo. Gazeta Express is one of the most creative news portal companies at the moment and is in full expansion. Therefore, when looking for a new space for their offices, they were very clear about the requirements that the space had to meet. The first one is purely functional.
The Outcome
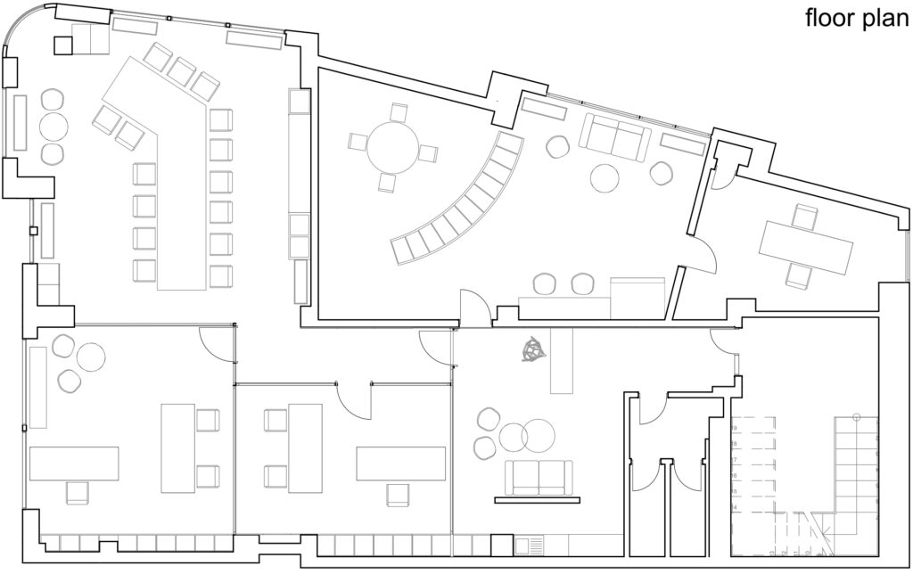
Location: Prishtina, Kosovo
Project date: 2015
Completion date: 2015
Area: 249.5 sqm
Type: Offices
Client: GazetaExpress
Photographs: Atdhe Mulla
Architect: Postarch – Fatlum Haliti, Menor Pajaziti





