
Downtown apartment SXH
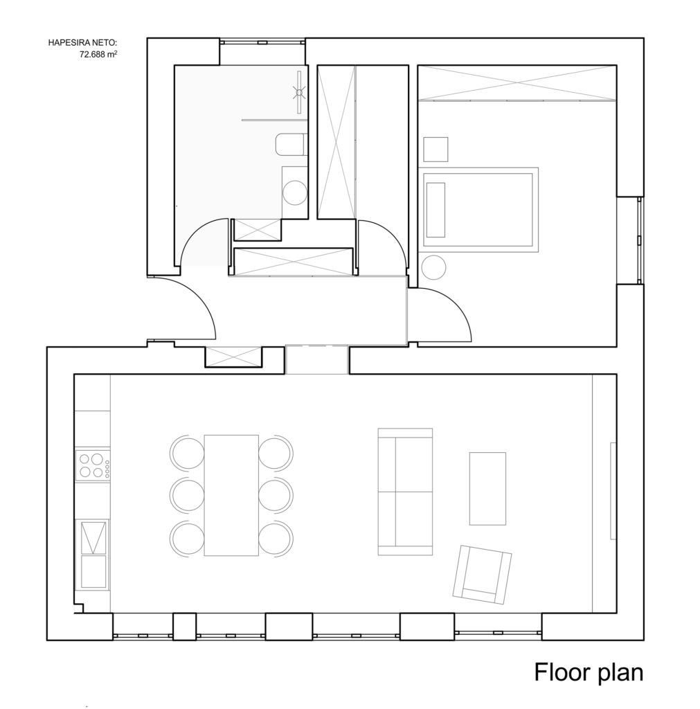
The project is the renovation of an apartment contained within a modernist block building originally designed after the WWII in Prishtina/Kosovo.
The Outcome
Location: Prishtina, Kosovo
Project date: 2014
Completion date: 2014
Area: 72.69 sqm
Type: Interior
Client: Private
Photographs: Atdhe Mulla
Project team: Postarch – Fatlum Haliti, Menor Pajaziti






